Buitengewoon huis
Doe een bod vanaf € 200.000

Dorpsstraat 37, 3450 Geetbets
    • delen

Omschrijving Ref.: 7578698

Zeldzame pastorie met monumentale tuin en commerciële potentie


In het mooie Geetbets prijkt deze uitzonderlijke historische pastorie, een karaktervol pand met een tijdloze uitstraling en een unieke ligging. De perfecte combinatie van erfgoed, charme en mogelijkheden.

De symmetrische architectuur zorgt voor een elegante en herkenbare uitstraling, terwijl de royale ruimtes zich lenen tot tal van invullingen: van stijlvolle privéwoning tot praktijk, kantoor of een aantrekkelijke horeca-uitbating op een toplocatie met visibiliteit en passage.

De voortuin vormt een waar pronkstuk. Hier staat een monumentale Japanse notenboom, aangeplant rond 1752 en beschermd als erfgoed. Met zijn indrukwekkende hoogte van 25 meter en een stamomtrek van 5,20 meter behoort dit uitzonderlijke exemplaar tot de oudste en meest majestueuze bomen van België — een uniek historisch decor dat deze eigendom een zeldzame uitstraling geeft.

Een pand met ziel, geschiedenis en commerciële opportuniteiten — een buitenkans voor wie op zoek is naar iets werkelijk bijzonders.

Men kan bieden op dit mooi pand vanaf 200.000.

De biedingen lopenop dit moment dus er kan geboden worden via ons kantoor.

De speciale bieding documenten met bijhorende handelingen zijn beschikbaar op ons kantoor.

info@immo-wereld.be


Uw contact

Benny Ceyssens 089 20 89 89
contact

Details van het pand

Financieel

Prijs
Doe een bod vanaf € 200.000,00
Kadastraal inkomen
€ 1.162,00
Vrij beroep mogelijk
Ja

Ligging

Buurt
Vrij zicht, centraal

Gebouw

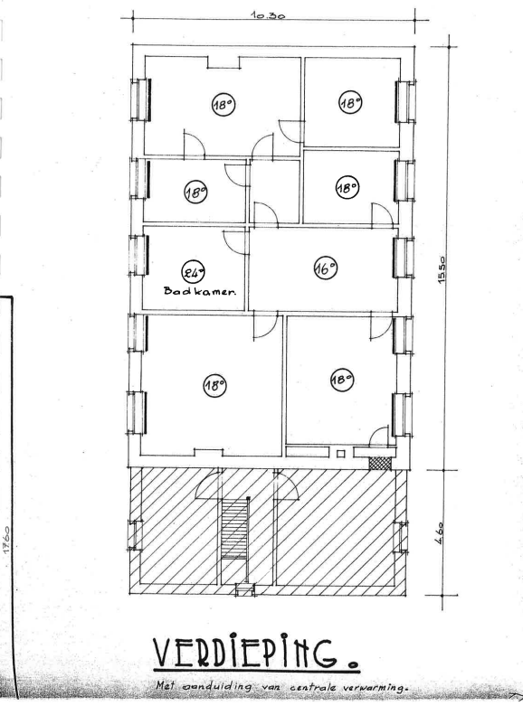
Bewoonbare oppervlakte
297,00 m²
Aantal gevels
4
Bouwjaar
1752
Type dak
Zadeldak
Oriëntatie achtergevel
Noord
Oriëntatie voorgevel
Zuid

Terrein

Grondoppervlakte
402,00 m²
Tuin
Ja

Parkeermogelijkheden

Garage
1
Parkings buiten
5
Parkings binnen
1

Indeling

Keuken
Ja, kitchenette
Bureau
Ja
Badkamer type
Douche en ligbad
Wasplaats
Ja
Zolder
Ja

Comfort

Gemeubeld
Nee

Energie

EPC
530 kWh/m²/jaar
Dubbele beglazing
Thermische en akoestische onderbreking
Ramen
Hout of pvc
Elektriciteitskeuring
Ja, niet conform
Type verwarming
Stookolie cv
Verwarming
Individueel
Olietank
3.000 L

Technieken

Elektriciteit
Ja
Telefoonbekabeling
Ja
Kabeltelevisie
Ja
Riolering
Ja
Water
Ja

Stedenbouw

Bestemming
Woongebied met landelijk karakter
Bouwvergunning
Ja
Verkavelingsvergunning
Ja
Voorkooprecht
Nee
Renovatieverplichting
Ja
Asbestinventarisattest
Ja
Asbestinventarisattest opmaak datum
04/02/2026
Asbestinventarisattest informatie
Niet asbestveilig
Dagvaarding
Nee - geen rechterlijke herstelmaatregel of bestuurlijke maatregel opgelegd
O-peil
Niet gelegen in een overstromingsgevoelig gebied
G-score
A
P-score
A
Watergevoelig openruimtegebied
Nee
Vonnissen
Nee

Meer info over deze eigendom

Bedankt voor je bericht, we contacteren je zo spoedig mogelijk.
Er was een probleem bij het versturen van het formulier, gelieve opnieuw te proberen.
(*) Gelieve de verplichte velden in te vullen.